- Устройство и обслуживание автомобилей
- Энциклопедии автомобилей
- Вождение автомобиля
- Водный транспорт
- Велосипеды. Мотоциклы. Скутеры
- Воздушный транспорт
- Поезда
Броненосный крейсер «Рюрик» (Скворцов Алексей Витальевич); Морское Наследие, 2024
2812
Издатель: Морское наследие
ISBN: 978-5-905795-79-4
EAN: 9785905795794
Книги: Военная техника
ID: 14629592
Добавлено: 26.03.2024
Описание
Монография представляет собой наиболее полное в отечественной историографии описание проектирования, строительства и службы одного из самых знаменитых кораблей российского флота — броненосного крейсера «Рюрик». Проектирование корабля началось незадолго до заключения Портсмутского мирного договора между Россией и Японией, строился крейсер в Великобритании, на заводе фирмы «Vickers». Вплоть до вступления в строй линейных кораблей-дредноутов типа «Севастополь» «Рюрик» являлся самым большим кораблём Российского Императорского флота. Он заслуженно считался самым красивым боевым кораблём флота. После вступления в строй «Рюрик» принимал участие в походах «Гардемаринского отряда», затем вошёл в состав Бригады линейных кораблей Балтийского флота и до конца 1915 года был флагманским кораблём командующего флотом адмирала Н. О. фон Эссена, а затем вошёл в состав 1-й бригады крейсеров Балтийского флота. В годы первой мировой войны «Рюрик» принял участие в большинстве операций флота, в том числе в бою у острова Готланд. После заключения Брестского мира «Рюрик» участвовал в Ледовых походах Ревель — Гельсинфорс и Гельсинфорс - Кронштадт.
После сдачи на слом в 1923 году 203-мм башни крейсера были переданы Береговой обороне и установлены на кронштадтских фортах «Тотлебен» и «Обручев». Эти орудия активно участвовали в Советско-финляндской и Великой Отечественной войнах, обороне Ленинграда, операциях по прорыву и освобождению города от блокады.
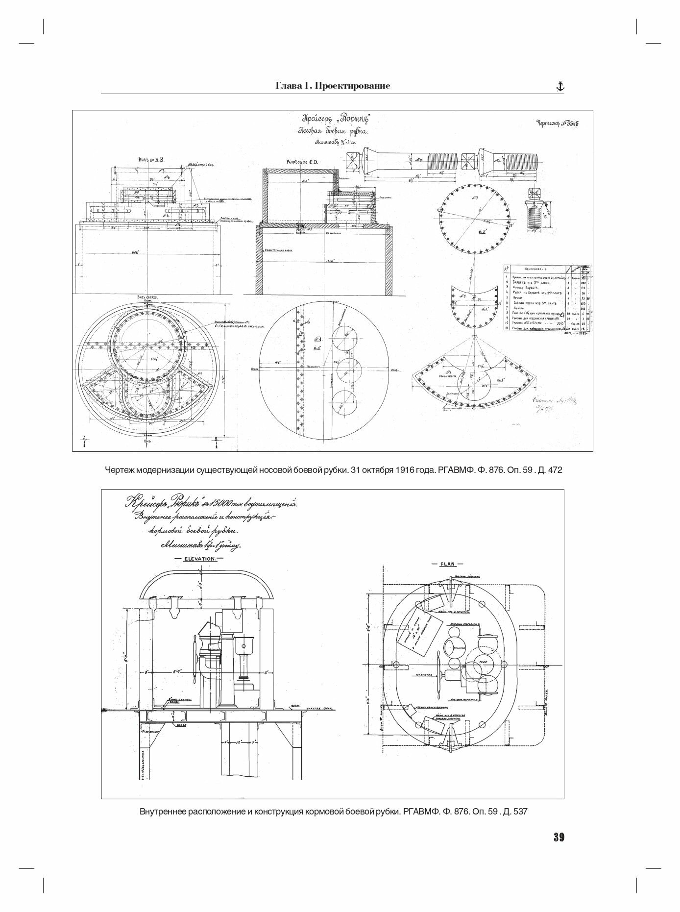
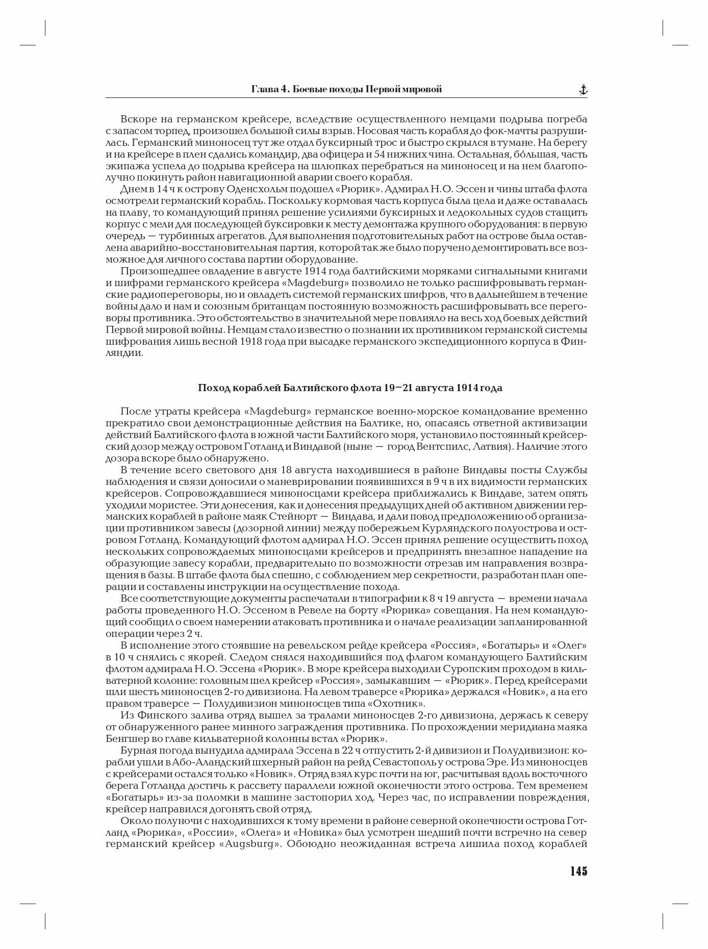
Монография иллюстрирована большим количеством фотографий и чертежей.
Смотри также о книге.
СкидкаГИД инфо +
Сервис сравнения цен СкидкаГИД предлагает сравнить цены на товар «Книга: Броненосный крейсер «Рюрик» (Скворцов Алексей Витальевич); Морское Наследие, 2024»
По данным нашего сервиса товар предлагался к продаже в 4 магазинах. На сегодняшний день доступен в 3 магазинах: Читай-город, Буквоед, book24. По цене от 2812 р. до 2812 р., средняя цена составляет 2812 р., а самая низкая цена в магазине Читай-город. В случае, если для вас на данный момент цена слишком высока, вы можете воспользоваться сервисом «Сообщить о снижении цены» - мы оповестим вас как только цена опустится до желаемого значения. Но будьте внимательны, используя сервис «История цены» можно спрогнозировать в какую сторону изменяется цена, возможно сейчас самое время для покупки.
Кроме сервиса сравнеция цен, наш сайт также позволяет экономить еще двумя способами: промокодный сервис (информация о промокодах, а также скидки и акции на товары), а также собственный кэшбэк сервис. Купить с кешбеком можно в следующих магазинах: Читай-город, Буквоед, book24. А информация о промокодах доступна рядом с ценой от магазина и постоянно обновляется.
О книге
| Параметр | Значение |
|---|---|
| ISBN | 978-5-905795-79-4 |
| Автор(ы) | Скворцов Алексей Витальевич |
| Вес | 0.81кг |
| Год издания | 2024 |
| Издатель | Морское Наследие |
| Кол-во страниц | 232 |
| Количество страниц | 232 |
| Переплет | Твердый переплет |
| Переплёт | твердый |
| Раздел | История войн |
| Размеры | 21,30 см × 29,30 см × 1,80 см |
| Страниц | 232 |
| Тематика | Военная техника |
| Формат | 60х90/8 шитая |
Где купить (3)
Цена от 2812 руб до 2812 руб в 3 магазинах
Также рекомендуем ознакомиться с ценами на Яндекс.Маркет.
Похожие предложения вы можете найти в нашей подборке:
Книги: Военная техника - издательство "Морское наследие"
Книги: Военная техника с ценой 2249-3374 р.
| Магазин | Цена | Наличие |
|---|---|---|
| book24 5/5 | Промокоды на скидку | обновлено 30.10.2025 |
| Буквоед 5/5 | Промокоды на скидку | обновлено 30.10.2025 |
| Читай-город 5/5 | 2812 3421 Промокоды на скидку | обновлено 30.10.2025 |
| Avito 5/5 | Avito доставка позволит получить любой товар, не выходя из дома Промокоды на скидку | |
| Магазин | Последняя известная цена | Обновлено |
|---|---|---|
| Яндекс.Маркет | 1950 | 27.06.2024 |
Кэшбэк сервис СкидкаГИД
На сегодняшний день товар «Книга: Броненосный крейсер «Рюрик» (Скворцов Алексей Витальевич); Морское Наследие, 2024» можно купить с кешбеком в 3 магазинах: book24, Буквоед, Читай-город
Кэшбэк – это возврат части денег, потраченных Вами в интернет-магазинах. Всего на нашем сайте более 500 магазинов, с многими из которых Вы наверняка уже знакомы. У каждого магазина свои условия. Кто-то возвращает процент от покупки, а кто-то фиксированную сумму.
Заказывайте он-лайн и получайте часть денег обратно, подробнее..
Книги: Военная техника - издательство "Морское наследие"
Категория 2249 р. - 3374 р.
Военная техника - издательство "Морское наследие" »
Книги: Военная техника
Категория 2249 р. - 3374 р.



