- Смесители и термостаты
- Инсталляции и запчасти
- Аксессуары для кухонных моек
- Измельчители пищевых отходов
- Тумбы, пеналы и шкафы
Душевой уголок Vegas Glass профиль глянцевый хром стекло сатин ZS-F TUR NOVO 120*100 08 10
89449
Производитель: Vegas Glass
Модель: ZS-F TUR NOVO 120*100 08 10
Тип товара: Уголки, ограждения и поддоны
ID: 12593889
Добавлено: 21.04.2023
Описание
Душевой уголок Vegas Glass профиль глянцевый хром незаменимый элемент любой ванной комнаты от миниатюрного санузла в многоквартирной высотке, до огромного помещения в загородном доме. Внутри душевого уголка гораздо больше полезного пространства, в сравнении с традиционными душевыми кабинами, благодаря чему при равных размерах в душевом уголке будет намного просторнее и комфортнее.
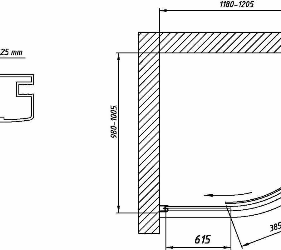
Душевой уголок Vegas Glass ZS-F Tur Novo прямоугольной-асимметричной формой размером 120 см на 100 см высотой 200 см создаст значительное пространство внутри, для вашего комфорта. Цвет профиля Vegas Glass ZS-F Tur Novo - хром, это несравненный вариант для современного интерьера. Конструкция дверей раздвижная, состоящая из 2 секций, не требует дополнительного пространства для открывания и позволяет оптимизировать пространство ванной комнаты. Стекло у душевого уголка Vegas Glass представлено в идеальном исполнении, толщиной 6 мм, отлично будет гармонировать с любым дизайном интерьера ванной. Универсальность ориентации Vegas Glass ZS-F Tur Novo позволяет не задумываться о, том в какой именно угол нужно устанавливать, и даже при изменении положения других элементов сантехники, можно без проблем изменить ориентацию. Vegas Glass ZS-F Tur Novo спроектирован дизайнерам с четким соблюдением всех ключевых элементов.
Все душевые ограждения Vegas Glass, производятся с жестким соблюдением современных стандартов качества и применение материалов безопасных для здоровья, благодаря тому, что родна производства Россия. Душевой уголок Vegas Glass профиль глянцевый хром визуально расширит пространство и создаст комфортное место для гигиенических процедур.
Смотри также характеристики.
СкидкаГИД инфо +
Сервис сравнения цен СкидкаГИД предлагает сравнить цены на товар «Душевой уголок Vegas Glass профиль глянцевый хром стекло сатин ZS-F TUR NOVO 120*100 08 10»
По данным нашего сервиса товар предлагался к продаже в 3 магазинах. На сегодняшний день доступен в 1 магазине: Santprice. По цене от 89449 р. до 89449 р. В случае, если для вас на данный момент цена слишком высока, вы можете воспользоваться сервисом «Сообщить о снижении цены» - мы оповестим вас как только цена опустится до желаемого значения. Но будьте внимательны, используя сервис «История цены» можно спрогнозировать в какую сторону изменяется цена, возможно сейчас самое время для покупки.
Кроме сервиса сравнеция цен, наш сайт также позволяет экономить еще двумя способами: промокодный сервис (информация о промокодах, а также скидки и акции на товары), а также собственный кэшбэк сервис.
Характеристики
| Параметр | Значение |
|---|---|
| Артикул | ZS-F TUR NOVO 120*100 08 10 |
| Бренд | Vegas Glass |
| ВКоробке | Душевой уголок - 1 шт. Инструкция - 1 шт. |
| Вес брутто | 59 |
| Вес | 57 |
| Вид установки | пристенный в угол, пристенный, напольный |
| Высота, см | 200 |
| Высота | 200 |
| Габариты2 | 120x100 |
| Гарантия | 2 года |
| Глубина | 100 |
| Длина, см | 100 |
| Дополнительная информация | регулируемая ширина 118-120,5 см, регулируемая глубина 98-100,5см |
| Исполнение полотна двери | матовое |
| Количество секций двери | 2 |
| Конструкция дверей | раздвижная |
| Материал полотна двери | стекло |
| Материал профиля | алюминий |
| Монтаж | напольный,пристенный в угол |
| Наличие | Под заказ |
| Ориентация | универсальная |
| Поверхность профиля | глянцевая |
| Поверхность | глянцевая |
| Поддон в комплекте | нет, установка на пол без поддона |
| Поддон на фото | да |
| Полотно двери | матовое |
| Размер_уголки | 120x100 |
| Регулируемая ширина | да |
| Серия | ZS-F Tur Novo |
| Стилистика дизайна | современный стиль |
| Стиль | современный |
| Страна бренда | Россия |
| Страна | Россия |
| Тип | душевой уголок |
| Товары под заказ | Да |
| Толщина полотна двери, мм | 6 |
| Толщина полотна двери | 6 |
| Форма | прямоугольная-асимметричная |
| Цвет профиля | хром |
| Ширина входа, см | 55 |
| Ширина входа | 55 |
| Ширина, см | 120 |
| Ширина | 120 |
Где купить (1)
Цена от 89449 руб до 89449 руб в 1 магазине
Похожие предложения вы можете найти в нашей подборке:
Души и душевые системы Vegas Glass
Души и душевые системы с ценой 71559-107338 р.
| Магазин | Цена | Наличие |
|---|---|---|
| Santprice 5/5 | 89449 Онлайн-гипермаркет сантехники, осветительных приборов и мебели | обновлено 17.04.2026 |
| Яндекс.Маркет 5/5 | Промокоды на скидку | |
| AliExpress 5/5 | Один из крупнейших мировых маркетплейсов,
| |
| Магазин | Последняя известная цена | Обновлено |
|---|---|---|
| Santehnika-online | 65510 | 01.08.2023 |
| satra | 72087 | 08.12.2023 |
Кэшбэк сервис СкидкаГИД
Кэшбэк – это возврат части денег, потраченных Вами в интернет-магазинах. Всего на нашем сайте более 500 магазинов, с многими из которых Вы наверняка уже знакомы. У каждого магазина свои условия. Кто-то возвращает процент от покупки, а кто-то фиксированную сумму.
Заказывайте он-лайн и получайте часть денег обратно, подробнее..
Души и душевые системы Vegas Glass
Категория 71559 р. - 107338 р.
Уголки, ограждения и поддоны Vegas Glass »



